La planta municipal envasadora de agua producirá 3.750 bidones de 12 litros por día para abastecer en principio a un universo cercano a los 15.000 habitantes de la ciudad de Trenque Lauquen, de acuerdo al proyecto que elaboró la Municipalidad de Trenque Lauquen elevado al Ente Nacional De Obras Hídricas De Saneamiento (ENOHSA).

De acuerdo a la iniciativa que preparó el equipo técnico de la gestión del intendente Miguel Fernández, montar y equipar la flamante planta tendrá una inversión de unos 80 millones de pesos que financiará el Ente que conduce el ex jefe comunal de Guaminí, Néstor Álvarez, dentro de la órbita del Ministerio de Obras Públicas de la Nación.
En las especificaciones del proyecto, al que tuvo acceso DataTrenque, se plantea que se busca llegar a unos 15.000 habitantes con agua segura y de calidad para consumo humano (el 30% de la población total, aproximado).
Con la idea de brindar entre 3 y 4 litros diarios de agua de mesa para consumo por día y por persona, la producción de la planta deberá ser de 45.000 litros diarios.

“Se considera trabajar con envases retornables de 12 litros (lo cual genera una mayor comodidad al vecino para su traslado), por lo que la planta deberá otorgar un total de 3.750 bidones de agua por jornada”, cita el informe técnico que ya tiene luz verde en el ENOHSA.
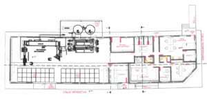
El reporte indica que “la obra civil comprende la construcción de un edificio destinado a sector de producción, laboratorio y oficinas de administración”.
La planta estará emplazada en un predio ya definido sobre una estructura con un tinglado que deberá ser construido. Se dimensionó una planta “con una cisterna que abastece al tanque elevado de 1000 m3 de la ciudad y tratarla mediante dos equipos de Ósmosis Inversa cuyo caudal máximo será de 2 m3/h cada uno. Funcionando ambos equipos en simultáneo y sobre la hipótesis de una jornada de trabajo de 12 horas se lograría producir unos 48.000 litros diarios de agua de ósmosis”.

“La instalación de una Planta Municipal de Envasado de Agua de Mesa, brindará una solución para completar el abastecimiento de agua potable a toda la población”, según el paper girado al gobierno nacional.
En los fundamentos, el municipio explicó que “la zona del distrito de Trenque Lauquen por su conformación geológica no tiene recursos de agua dulce en cantidad, como también ocurre en muchos otros distritos de la región. Esta carencia abarca tanto a la disponibilidad de aguas superficiales como de aguas subterráneas (siendo hoy en día siendo esta última la única fuente de abastecimiento para el distrito). La baja disponibilidad de este recurso junto al crecimiento de la ciudad hace que el natural equilibrio entre oferta y demanda, lenta y progresivamente, haya ido rompiéndose y, producto del mismo, genere problemas que tienen que ver con el abastecimiento de agua corriente para los habitantes”.
LA ESTRUCTURA DE LA PLANTA
El proyecto estipula que la planta municipal envasadora de agua de mesa tendrá la posibilidad de concretar “los procesos de destapado, cepillado y lavado de bidones, mediante equipos automatizados. A su vez, se procesa el agua cruda con un equipo de Ósmosis Inversa, previamente tratada con filtros PRFV”.

“Conectados al área de producción, se encuentran dos zonas destinadas a depósito de envases para limpiar (conectada por una cinta automática que ingresa los bidones sucios a la maquina destaponadora) y depósito de los bidones llenos listos para su distribución. La planta contará con un área de despacho de bidones y recepción de envases vacíos. Desde la misma se podrá visualizar la planta de producción y laboratorio de control de calidad”, se describe en el informe técnico.

La planta contará también con un Laboratorio de control de calidad y central de monitoreo donde “se realizarán análisis fisico-químicos de rutina para seguimiento del proceso”.